 |
 |
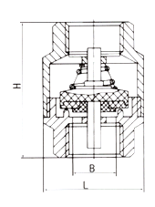
概述: H12W型絲口立式止回閥精度高,外觀美,造型小,帶有彈簧裝置,垂直與水平安裝均可等,H12W型絲口立式止回閥特點.主要適應管道系統中防止介質倒流使用. |
H12W型絲口立式止回閥主要技術參數: 工作壓力H12型為6-16Mpa H13型為4-32Mpa 工作介質為<=420 o C 和<=170 o C的水,油,液體 全不銹鋼材料制造 材料:不銹鋼304、不銹鋼316、不銹鋼316L |
H12W型絲口立式止回閥性能參數與主要尺寸:
| 公稱通徑 DNmm |
ZG |
H |
L |
| 15 |
1/2" |
73 |
43 |
| 20 |
3/4" |
85 |
48 |
| 25 |
1" |
95 |
55 |
| 32 |
1-1/4" |
113 |
73 |
| 40 |
1-1/2" |
138 |
86 |
| 50 |
2" |
156 |
98 | | |